A part of
History
-
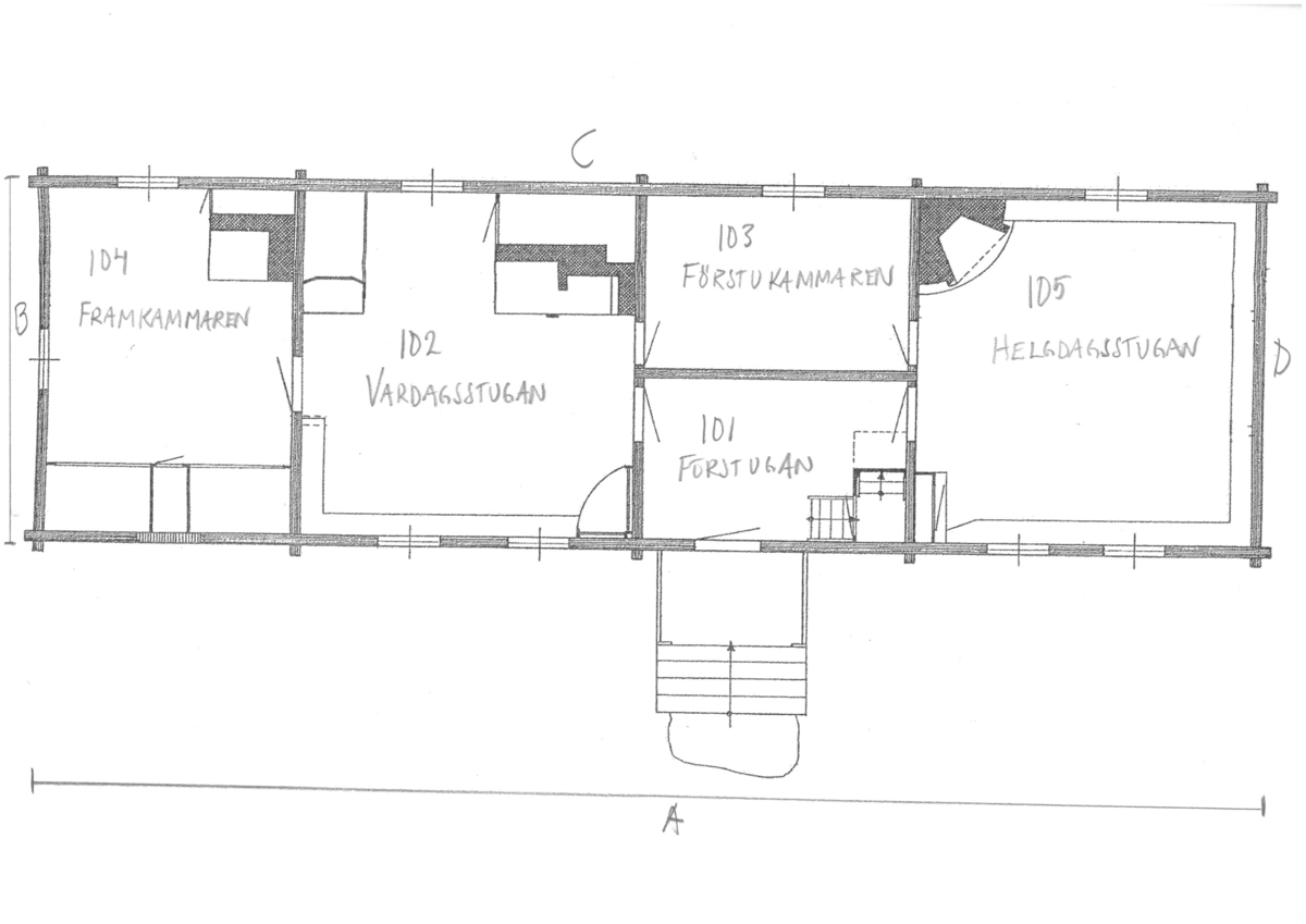
- Edsängsstugan kommer från hemmanet nr 3 i Edsängs by, Delsbo socken i Hälsingland. Byggnaden uppfördes troligen vid slutet av 1700-talet, då som en låg timrad parstuga, övervåningen byggdes till vid mitten av 1800-talet.
Uppförande - Uppskattad: 1750 - 1799 (Litteratur)
- Tidigare ort för byggnad m.m.Sverige Hälsingland Delsbo Edsängsäker
Ändring - Påbyggnad övervåning: 1840 - 1899 (Litteratur)
- Tidigare placeringSverige Hälsingland Delsbo Edsängsäker
Flyttning: 1938 - 1939 (Litteratur)
till Skansen- Tidigare placeringSverige Hälsingland Delsbo Edsängsäker
Återuppförande: 1939 - 1940
- Nuvarande namn för byggnad m.m.Edsängsstugan, Delsbogården, Skansen
- Nuvarande ort för byggnad m.m.Sverige Stockholm Stockholm Stockholm Skansen Delsbogården Djurgårdensäker
Relation
-
Object/Work – Components 6 related objects
- BuildingFörstugan (SKABYG.31402_101)
- BuildingVardagsstugan (SKABYG.31402_102)
- BuildingFörstukammaren (SKABYG.31402_103)
- BuildingHelgdagsstugan (SKABYG.31402_105)
- BuildingFramkammare (SKABYG.31402_104)
- BuildingVinden (SKABYG.31402_106)
Downloads
- File attachments 200488, Åtgärdsrapport. Trappan 2016 (1.8 MB)
Placement
References
-
- LitteraturreferenserNordiska museet (1980). Skansens hus och gårdar. ([Ny, bearb., utök. uppl.]). Stockholm: Nordiska mus.
License information
- License Contact owner for more information
Metadata
- Identifier SKABYG.31402
- Part of collection Skansens museala byggnader
- Owner of collection Skansen
- Institution Skansen
- Date published October 13, 2018
- Date updated May 19, 2025
- DIMU-CODE 021057940767
- UUID e8625ed6-6c83-4dbe-92b2-4427f2133a15
- Tags
Add a comment or suggest edits
To publish a public comment on the object, select «Leave a comment». To send an inquiry directly to the museum, select «Send an inquiry».